Deze spiksplinternieuwe vakantiewoning aan het Kanaal Alkmaar (Omval) - Kolhorn staat nu te koop op park Vakantierijk Waarland in Noord-Holland! De Polderparel XL is een grotere versie van maar liefst 70m2 dat beschikt over drie slaapkamers, badkamer, apart toilet en geschikt voor zes personen. Deze woning is ontworpen voor ontspanning en comfort, ongeacht het seizoen. Heeft u liever een recreatiewoning met eigen grond? Het is ook mogelijk de kavel te kopen! De kavelgrootte is circa 200 – 300 m², de definitieve oppervlakte wordt nog door het kadaster ingemeten.
Er staan verschillende showmodellen op het park die direct beschikbaar zijn. Mocht u kiezen voor een lege kavel, dan heeft u de mogelijkheid om de vakantiewoning volledig zelf samen te stellen bij de bouwer. Denk aan de kleuren, indeling en andere materialen.
Het park werkt samen met de ING, die hypotheken verstrekt voor vakantiewoningen. Bij serieuze overwegingen kan er contact worden opgenomen met de persoonlijke hypotheekadviseur van Vakantierijk Waarland. Hij is goed op de hoogte van het aanbod en kijkt vrijblijvend mee naar de financiële mogelijkheden, zodat u precies weet wat u kunt lenen en wat de maandlasten zijn.
Vraag direct meer informatie op over de prijzen en mogelijkheden: mark@stacaravanmakelaar.nl
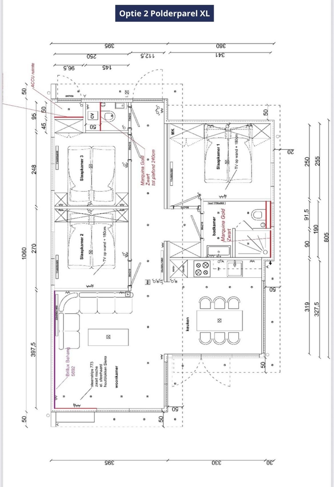
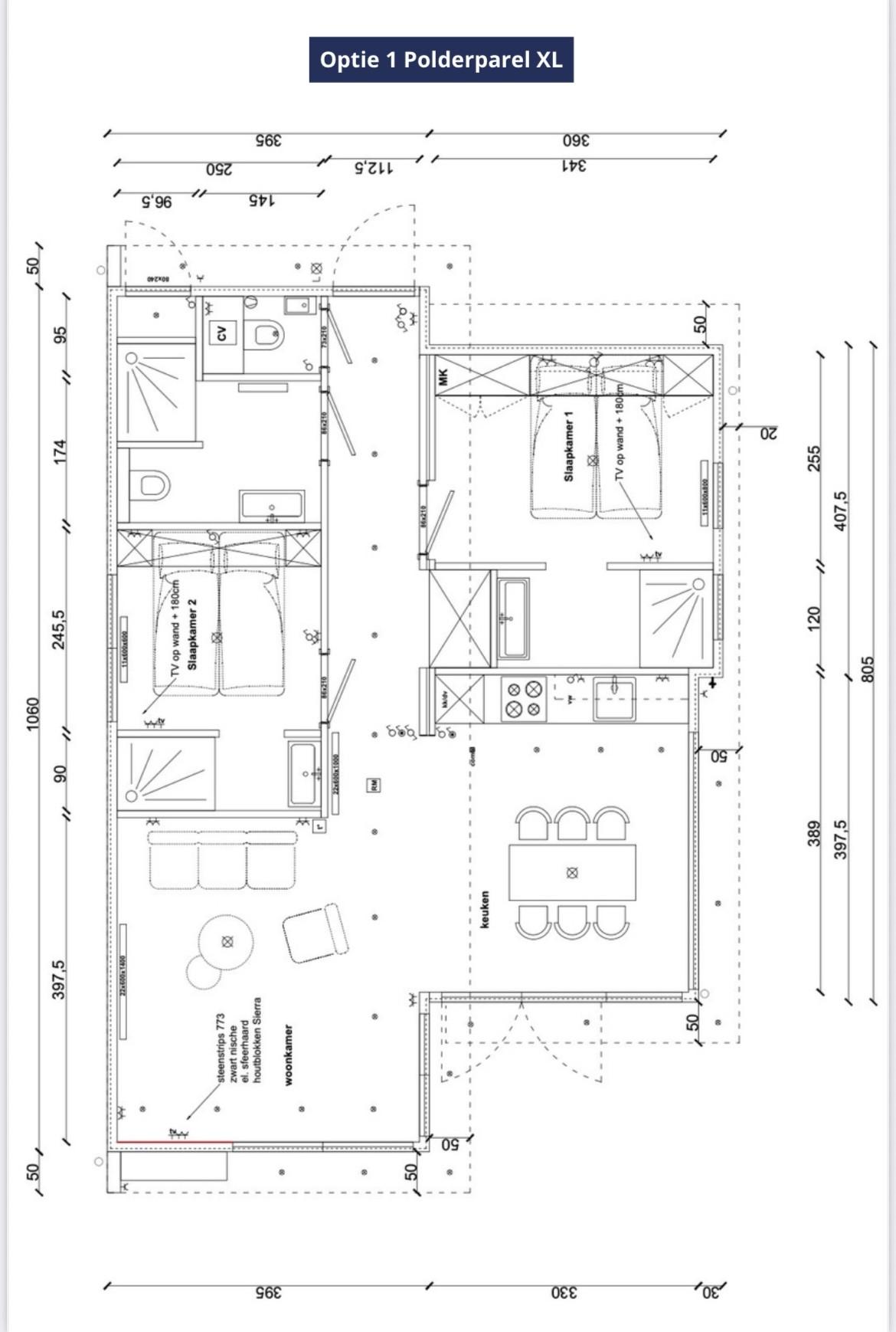
Chalet te koop op standplaats Polderparel XL
Woonkamer;
De woonkamer wordt compleet gestoffeerd opgeleverd en de grote raampartij zorgt voor veel natuurlijk licht, zodra u binnenkomt valt meteen het ruimtelijke gevoel op. De ruimte wordt verwarmd door middel van de centrale verwarming en sfeerhaard, de Polderparel XL biedt het hele jaar door optimaal comfort. Dankzij de duurzame materialen en de winterharde constructie kunt u hier in elk seizoen genieten of het nu zomer of winter is. Uitgevoerd met zonnepanelen en accupakket.
Keuken;
De luxe keuken met hoogwaardige inbouwapparatuur is ingericht met een 4-pits gasfornuis met afzuigkap, vaatwasser, koelkast, combi oven en voldoende kastruimte.
Slaapkamers; (6-persoons)
In de hoofdslaapkamer staat een 2-persoonsbed met prachtige kast ombouw, ideaal om alle spullen in op te bergen. In de 2de slaapkamer staat een 2-persoonsbed met hoofd ombouw en wandkast en in de 3de slaapkamer ook een 2-persoonsbed met een ruime kledingkast.
Badkamer + apart toilet;
De luxe badkamer is voorzien van een inloopdouche, wastafelmeubel en een toilet. Daarbij is er nog een apart toilet met fontein en kastruimte.
Tuin;
Deze vakantiewoning staat op een ruime kavel met veel privacy. In overleg met onze eigen hovenier kunt u uw tuinplan geheel naar wens samenstellen en kunt u heerlijk genieten van de rust en de natuur. Er is een eigen parkeergelegenheid en bij de entree van het park is er ook voldoende parkeerruimte.
Vakantierijk Waarland
Vakantierijk Waarland gelegen in het hart van Noord-Holland en op korte afstand van de stad Alkmaar, biedt een heerlijke mix van rust, water en natuur. Een gloednieuw vakantiepark met tal van vermakelijke faciliteiten. Geniet van de speelvelden met verschillende speeltoestellen of geniet op bourgondische wijze van het restaurant met luxe terras. Het park ligt aan het Kanaal Alkmaar (Omval) - Kolhorn, hiervandaan kunt u heerlijk met de boot of kano meerdere kanten op. Zoals het bekende 'rondje' Waarland, een tocht door Het Rijk der Duizend Eilanden of heerlijk varen door de mooie grachten van Alkmaar.
De bestemming van de kavels met de chalets is recreatie. Dat betekent dat permanente bewoning niet is toegestaan. Woningen zijn geschikt voor eigen gebruik als in combinatie met verhuur.
Faciliteiten:
- Restaurant de Smaak van Waarland
- Speelvelden
- Binnenzwembad
- Was- droogruimtes
- Laadpalen elektrische auto
Omgeving Vakantierijk Waarland
Vlakbij Alkmaar biedt de regio Polder tal van populaire bezienswaardigheden. De omgeving kenmerkt zich door historische molens, kanaaltjes en uitgestrekte polderlandschappen. Ontdek wat er allemaal te beleven is in deze unieke regio.
- Stranden
- Fiets- en wandelroutes
- Vlindorado
- Openlucht zwembad Waarland
- Het gezellige stadje Schagen
- Noord-Hollandse polder
- Bezoekerscentrum en Museummolen Schermerhorn
- Gemeentehaven Hoorn
- Kaasmarkt Alkmaar
Parkinformatie Vakantierijk Waarland
- Gehele jaar geopend (Indicatie parkkosten: Op aanvraag)
- Honden toegestaan
- Verhuur mogelijk (vraag naar de mogelijkheden)
- Wilt u de grond kopen? Vraag ons naar de kavelprijs
